
Campus Founders
Status:
Fertigstellt
Jahr:
2020 – 2021
Typ:
Büro, Innovation Hub
Größe:
1.500 m²
KundIn:
Dieter Schwarz Stiftung
Ort:
Heilbronn, Deutschland











Für das neue Büro der „Campus Founders“ verwandelten Wir eine ehemalige Bibliothek in ein Start-up-Zentrum und einen Inkubator-Hub. Der Standort befindet sich im süddeutschen Heilbronn auf dem Campus der Dieter Schwarz Stiftung.
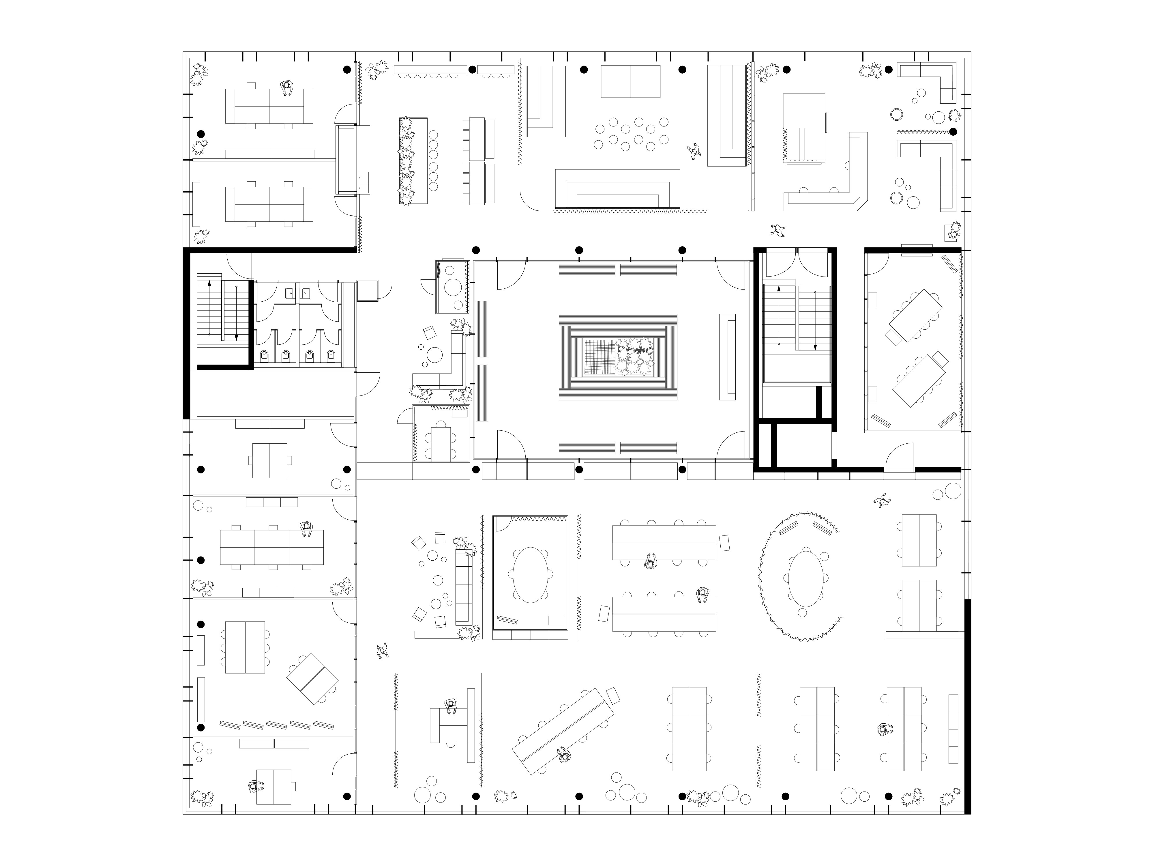
Der Grundriss zeigt eine kreisförmige Struktur, die Lounges, Büros, Eventflächen und Workshopbereiche miteinander verbindet und so ein fließendes Arbeitserlebnis ermöglicht. Im Zentrum entsteht das Herzstück sowie ein Außenbereich als Treffpunkt, der alle Bereiche miteinander verknüpft und den Austausch sowie die Weiterentwicklung der dort entstehenden Ideen fördert.
Beim Durchlaufen der Räume gliedert sich das Büro in eine Eingangshalle mit Lounges und Check-in-Bereich, eine Arena und einen multifunktionalen Eventraum mit Bar und Küche, einen Außenbereich als Herz des Büros, eine großzügige flexible Open-Workspace-Fläche sowie private Büros.
Das Gebäude öffnet sich mit einer Glasfassade nach außen und umfasst rund 1.500 m² Bruttogrundfläche pro Etage.
Weitere Informationen unter www.campusfounders.de





Für das neue Büro der „Campus Founders“ verwandelten Wir eine ehemalige Bibliothek in ein Start-up-Zentrum und einen Inkubator-Hub. Der Standort befindet sich im süddeutschen Heilbronn auf dem Campus der Dieter Schwarz Stiftung.
Der Grundriss zeigt eine kreisförmige Struktur, die Lounges, Büros, Eventflächen und Workshopbereiche miteinander verbindet und so ein fließendes Arbeitserlebnis ermöglicht. Im Zentrum entsteht das Herzstück sowie ein Außenbereich als Treffpunkt, der alle Bereiche miteinander verknüpft und den Austausch sowie die Weiterentwicklung der dort entstehenden Ideen fördert.
Beim Durchlaufen der Räume gliedert sich das Büro in eine Eingangshalle mit Lounges und Check-in-Bereich, eine Arena und einen multifunktionalen Eventraum mit Bar und Küche, einen Außenbereich als Herz des Büros, eine großzügige flexible Open-Workspace-Fläche sowie private Büros.
Das Gebäude öffnet sich mit einer Glasfassade nach außen und umfasst rund 1.500 m² Bruttogrundfläche pro Etage.
Weitere Informationen unter www.campusfounders.de
Team:
Dea Kaker Strucl, Michal Blutrich, Karl Frederik Scholz
Kollaborationen:
Kollaborationen
Licht- und Medienplanung: CUT GmbH
Leistungsphasen:
LPH 01 – 08
Fotos:
KAMI BLUSCH
(Other works)
Wir freuen uns von Dir zu hören
Wir freuen uns von Dir zu hören



