

Private Capital Bank
Status:
Jahr:
2022 – 2023
Typ:
Büro
Größe:
3.000 m2
KundIn:
Privat
Ort:
Berlin












Für den Neubau einer öffentlichen Finanzinstitution in Berlin wurde ein ganzheitliches innenarchitektonisches Ausbaukonzept für eine Gesamtfläche von rund 3.000 m² entwickelt und geplant. Ziel des Projektes war es, eine zeitgemäße Arbeitsumgebung zu schaffen, die sowohl funktionale Anforderungen moderner Bürostrukturen als auch kommunikative und repräsentative Bereiche integriert. Dabei standen Nachhaltigkeit, akustischer Komfort, flexible Nutzung und eine identitätsstiftende Gestaltung im Mittelpunkt der Planung.
Das Projekt umfasste die vollständige Innenausbauplanung sämtlicher Gewerke, einschließlich Boden-, Wand- und Deckensystemen, maßgefertigten Einbauten, Farb- und Materialkonzepten sowie integralen Akustik-, Licht- und Medientechniklösungen. Die Planung erfolgte in enger Zusammenarbeit mit spezialisierten Fachpartnern, darunter die Akustikplanung mit Mollakustik GmbH sowie die Konzeption und Integration von Licht- und Medientechnik gemeinsam mit CUT GmbH.
Ein besonderer Schwerpunkt lag auf der Entwicklung eines nachhaltigen Innenraumkonzeptes, das sich an den Kriterien des DGNB Gold Standards orientiert. Neben ökologischen Aspekten wie Materialwahl, Langlebigkeit und Energieeffizienz wurden auch Aspekte der Nutzerzufriedenheit, Raumakustik, Tageslichtnutzung und Flexibilität der Arbeitsbereiche berücksichtigt.
Grundlage der Planung bildete eine umfassende Bedarfsplanung (LPH 0). Diese wurde im Rahmen eines intensiven dreitägigen Workshops mit Vertreterinnen und Vertretern der Organisation erarbeitet. Ziel dieses Prozesses war es, die Arbeitsweisen, Kommunikationsstrukturen und zukünftigen Anforderungen der Teams detailliert zu analysieren. Die Ergebnisse dieser Workshops flossen direkt in die räumliche Struktur, Zonierung und Gestaltung des Gebäudes ein und bildeten die Grundlage für die weiteren Planungsphasen.
Auf dieser Basis wurden sämtliche Leistungen der Leistungsphasen 1–5 der Innenarchitektur erbracht – von der Grundlagenermittlung und Vorplanung über Entwurf und Genehmigungsplanung bis hin zur detaillierten Ausführungsplanung des gesamten Innenausbaus.
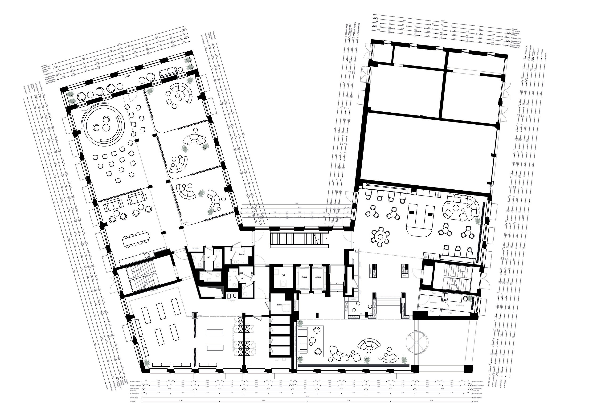
Im Erdgeschoss wurden zentrale öffentliche und kommunikative Bereiche entwickelt. Der Empfang und das Foyerbilden eine repräsentative Schnittstelle zwischen Institution und Öffentlichkeit und dienen gleichzeitig als Orientierungspunkt innerhalb des Gebäudes. Direkt angrenzend entstand ein Work-Café, das als informeller Treffpunkt für Mitarbeitende und Besucher konzipiert wurde und sowohl für kurze Meetings als auch für Pausen und spontane Begegnungen genutzt werden kann.
Ein weiterer Bestandteil des Erdgeschosses ist ein multifunktionaler Event- und Veranstaltungsbereich, der für Vorträge, interne Veranstaltungen und hybride Formate ausgelegt ist. Flexible Raumstrukturen, mobile Elemente sowie integrierte Medien- und Präsentationstechnik ermöglichen unterschiedliche Nutzungsszenarien. Ergänzend wurde ein Fitnessbereich für Mitarbeitende integriert, der zur Förderung von Gesundheit und Bewegung im Arbeitsalltag beiträgt.
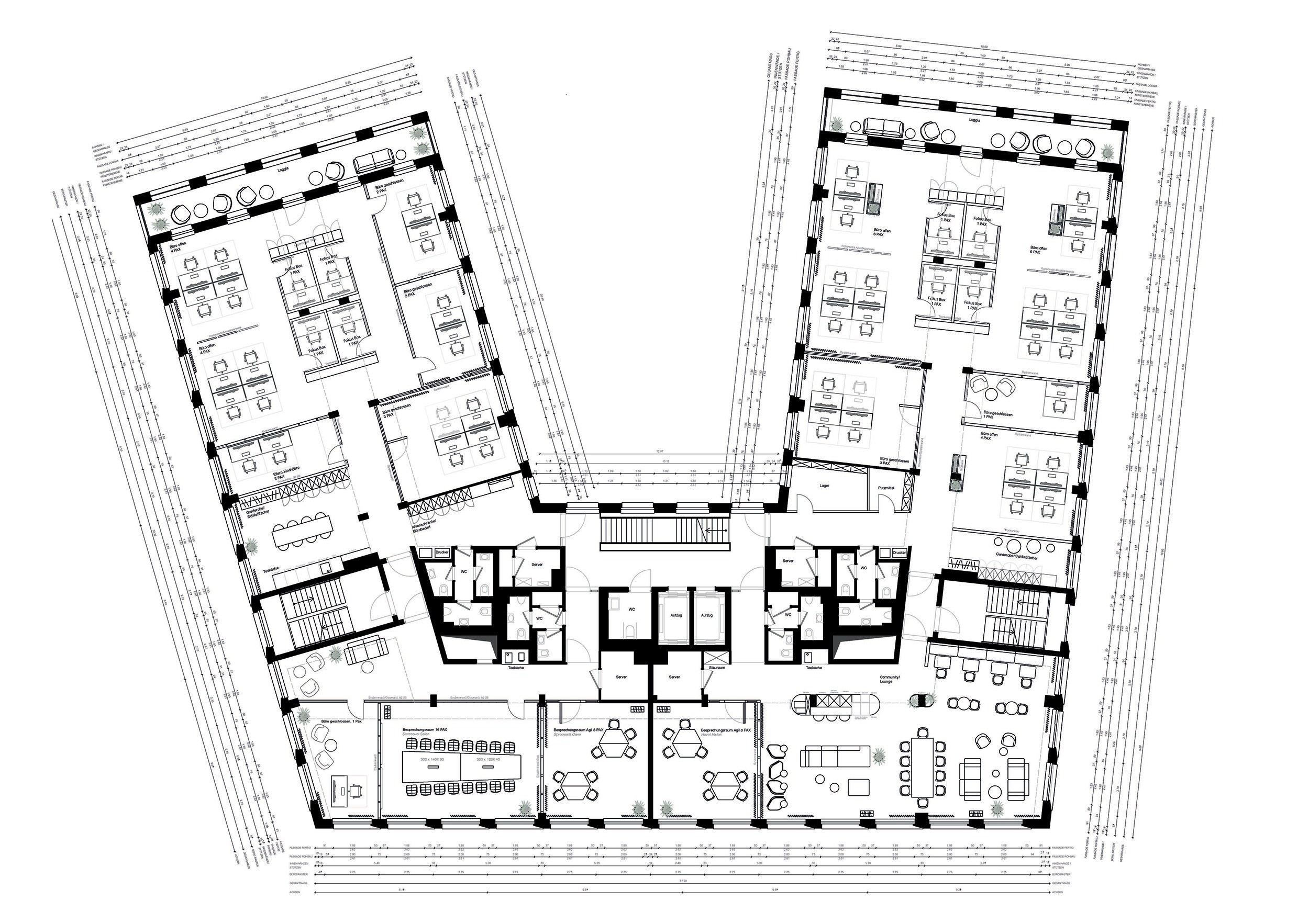
In den Obergeschossen (1.–2. OG) wurden die Büroflächen als moderne Arbeitslandschaften konzipiert, die unterschiedliche Arbeitsformen unterstützen. Neben Bereichen für fokussiertes Arbeiten entstanden offene Zonen für Teamarbeit und kollaborative Prozesse. Ergänzt wird diese Struktur durch zahlreiche Rückzugsorte, Besprechungsräume sowie Lounge- und Aufenthaltsbereiche, die sowohl informelle Kommunikation als auch konzentrierte Einzelarbeit ermöglichen.
Ein besonderes Augenmerk lag auf der akustischen Qualität der Arbeitsräume, um eine angenehme und produktive Arbeitsatmosphäre zu gewährleisten. Durch gezielt eingesetzte Akustikelemente, absorbierende Deckensysteme und materialbasierte Lösungen wurde eine ausgewogene Raumakustik in allen Bereichen erreicht.
Das Material- und Farbkonzept orientiert sich an einer ruhigen, hochwertigen und nachhaltigen Gestaltungssprache. Natürliche Materialien, differenzierte Oberflächen und eine klare Farbstruktur unterstützen die Orientierung im Gebäude und schaffen gleichzeitig eine warme, zeitgemäße Atmosphäre.
Durch die integrale Planung von Architektur, Innenraumgestaltung, Akustik, Licht und Medientechnik entstand ein zukunftsorientierter Arbeitsort, der sowohl die funktionalen Anforderungen eines modernen Bürogebäudes als auch die Bedürfnisse der Nutzerinnen und Nutzer in den Mittelpunkt stellt.








Für den Neubau einer öffentlichen Finanzinstitution in Berlin wurde ein ganzheitliches innenarchitektonisches Ausbaukonzept für eine Gesamtfläche von rund 3.000 m² entwickelt und geplant. Ziel des Projektes war es, eine zeitgemäße Arbeitsumgebung zu schaffen, die sowohl funktionale Anforderungen moderner Bürostrukturen als auch kommunikative und repräsentative Bereiche integriert. Dabei standen Nachhaltigkeit, akustischer Komfort, flexible Nutzung und eine identitätsstiftende Gestaltung im Mittelpunkt der Planung.
Das Projekt umfasste die vollständige Innenausbauplanung sämtlicher Gewerke, einschließlich Boden-, Wand- und Deckensystemen, maßgefertigten Einbauten, Farb- und Materialkonzepten sowie integralen Akustik-, Licht- und Medientechniklösungen. Die Planung erfolgte in enger Zusammenarbeit mit spezialisierten Fachpartnern, darunter die Akustikplanung mit Mollakustik GmbH sowie die Konzeption und Integration von Licht- und Medientechnik gemeinsam mit CUT GmbH.
Ein besonderer Schwerpunkt lag auf der Entwicklung eines nachhaltigen Innenraumkonzeptes, das sich an den Kriterien des DGNB Gold Standards orientiert. Neben ökologischen Aspekten wie Materialwahl, Langlebigkeit und Energieeffizienz wurden auch Aspekte der Nutzerzufriedenheit, Raumakustik, Tageslichtnutzung und Flexibilität der Arbeitsbereiche berücksichtigt.
Grundlage der Planung bildete eine umfassende Bedarfsplanung (LPH 0). Diese wurde im Rahmen eines intensiven dreitägigen Workshops mit Vertreterinnen und Vertretern der Organisation erarbeitet. Ziel dieses Prozesses war es, die Arbeitsweisen, Kommunikationsstrukturen und zukünftigen Anforderungen der Teams detailliert zu analysieren. Die Ergebnisse dieser Workshops flossen direkt in die räumliche Struktur, Zonierung und Gestaltung des Gebäudes ein und bildeten die Grundlage für die weiteren Planungsphasen.
Auf dieser Basis wurden sämtliche Leistungen der Leistungsphasen 1–5 der Innenarchitektur erbracht – von der Grundlagenermittlung und Vorplanung über Entwurf und Genehmigungsplanung bis hin zur detaillierten Ausführungsplanung des gesamten Innenausbaus.
Im Erdgeschoss wurden zentrale öffentliche und kommunikative Bereiche entwickelt. Der Empfang und das Foyerbilden eine repräsentative Schnittstelle zwischen Institution und Öffentlichkeit und dienen gleichzeitig als Orientierungspunkt innerhalb des Gebäudes. Direkt angrenzend entstand ein Work-Café, das als informeller Treffpunkt für Mitarbeitende und Besucher konzipiert wurde und sowohl für kurze Meetings als auch für Pausen und spontane Begegnungen genutzt werden kann.
Ein weiterer Bestandteil des Erdgeschosses ist ein multifunktionaler Event- und Veranstaltungsbereich, der für Vorträge, interne Veranstaltungen und hybride Formate ausgelegt ist. Flexible Raumstrukturen, mobile Elemente sowie integrierte Medien- und Präsentationstechnik ermöglichen unterschiedliche Nutzungsszenarien. Ergänzend wurde ein Fitnessbereich für Mitarbeitende integriert, der zur Förderung von Gesundheit und Bewegung im Arbeitsalltag beiträgt.
In den Obergeschossen (1.–2. OG) wurden die Büroflächen als moderne Arbeitslandschaften konzipiert, die unterschiedliche Arbeitsformen unterstützen. Neben Bereichen für fokussiertes Arbeiten entstanden offene Zonen für Teamarbeit und kollaborative Prozesse. Ergänzt wird diese Struktur durch zahlreiche Rückzugsorte, Besprechungsräume sowie Lounge- und Aufenthaltsbereiche, die sowohl informelle Kommunikation als auch konzentrierte Einzelarbeit ermöglichen.
Ein besonderes Augenmerk lag auf der akustischen Qualität der Arbeitsräume, um eine angenehme und produktive Arbeitsatmosphäre zu gewährleisten. Durch gezielt eingesetzte Akustikelemente, absorbierende Deckensysteme und materialbasierte Lösungen wurde eine ausgewogene Raumakustik in allen Bereichen erreicht.
Das Material- und Farbkonzept orientiert sich an einer ruhigen, hochwertigen und nachhaltigen Gestaltungssprache. Natürliche Materialien, differenzierte Oberflächen und eine klare Farbstruktur unterstützen die Orientierung im Gebäude und schaffen gleichzeitig eine warme, zeitgemäße Atmosphäre.
Durch die integrale Planung von Architektur, Innenraumgestaltung, Akustik, Licht und Medientechnik entstand ein zukunftsorientierter Arbeitsort, der sowohl die funktionalen Anforderungen eines modernen Bürogebäudes als auch die Bedürfnisse der Nutzerinnen und Nutzer in den Mittelpunkt stellt.
Team:
Karl Frederik Scholz, Michal Blutrich, Michael Bernard, Max Wosczyna, Theresa Bader
Kollaborationen:
Kollaborationen
CUT GmbH
Leistungsphasen:
LPH 01 – 05
(Other works)
Wir freuen uns von Dir zu hören
Wir freuen uns von Dir zu hören



