
Realworld One
Status:
Fertigstellt
Jahr:
2021 – 2023
Typ:
Büro
Größe:
4000 m²
KundIn:
Realworld One
Ort:
Stuttgart





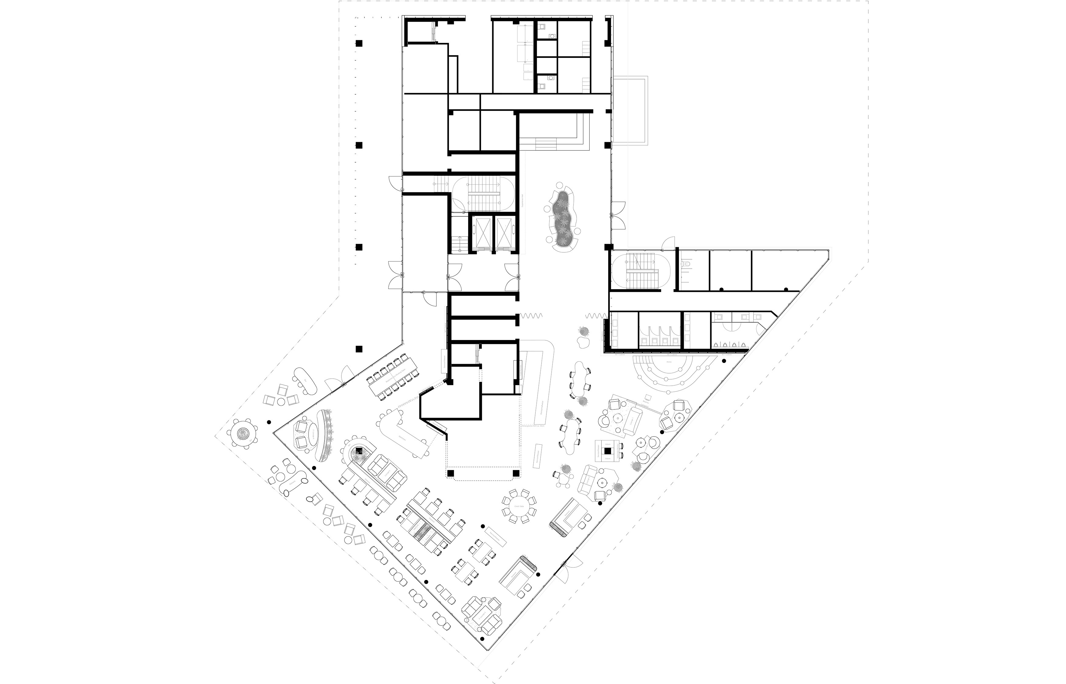
Für das Virtual- und Augmented-Reality-Unternehmen realworld one haben wir das neue Hauptquartier-Innenraumkonzept entworfen und geplant. Der Standort befindet sich in Freiburg (Deutschland) und umfasst insgesamt rund 120 Arbeitsplätze auf fünf Etagen. Das Raumprogramm beinhaltet Konferenzbereiche, Dialog- und Telefonboxen, eine Cafeteria sowie eine Mischung aus geschlossenen und offenen, agilen Arbeitsumgebungen.
Da VR- und AR-Technologie das zentrale DNA-Element von realworld one darstellt, haben wir maßgeschneiderte Augmented- und Virtual-Reality-Hubs entwickelt. Diese dienen dazu, die vielfältigen Softwarelösungen des Unternehmens erlebbar und präsentierbar zu machen. Die Anwendungen sind für Bereiche wie Wissenschaft, Analytik, Diagnostik sowie die medizinische, pharmazeutische, chemische und verarbeitende Industrie konzipiert.
Für das Virtual- und Augmented-Reality-Unternehmen realworld one haben wir das neue Hauptquartier-Innenraumkonzept entworfen und geplant. Der Standort befindet sich in Freiburg (Deutschland) und umfasst insgesamt rund 120 Arbeitsplätze auf fünf Etagen. Das Raumprogramm beinhaltet Konferenzbereiche, Dialog- und Telefonboxen, eine Cafeteria sowie eine Mischung aus geschlossenen und offenen, agilen Arbeitsumgebungen.
Da VR- und AR-Technologie das zentrale DNA-Element von realworld one darstellt, haben wir maßgeschneiderte Augmented- und Virtual-Reality-Hubs entwickelt. Diese dienen dazu, die vielfältigen Softwarelösungen des Unternehmens erlebbar und präsentierbar zu machen. Die Anwendungen sind für Bereiche wie Wissenschaft, Analytik, Diagnostik sowie die medizinische, pharmazeutische, chemische und verarbeitende Industrie konzipiert.
Team:
Anna Liu, Karl Frederik Scholz, Michal Blutrich
Leistungsphasen:
LPH 01 – 03
(Other works)
Wir freuen uns von Dir zu hören
Wir freuen uns von Dir zu hören



