
Ritter Ag
Status:
In Bearbeitung
Jahr:
2024-
Typ:
Büro
Größe:
3.500 m²
KundIn:
Ritter Ag
Ort:
Berlin, Deutschland








Für ein Büroprojekt der Ritterholding als Projektentwickler entwickelte KAMI BLUSCH das innenarchitektonische Konzept für eine offene Arbeitsumgebung. Ziel war es, eine flexible Bürostruktur zu schaffen, die kommunikative Arbeitsformen ebenso ermöglicht wie konzentriertes Arbeiten.
KAMI BLUSCH übernahm die Planung der Leistungsphasen 1–5 sowie die Erstellung der Renderings. Aufbauend auf der bestehenden Gebäudestruktur wurde ein räumliches Konzept entwickelt, das offene Arbeitsbereiche mit klar definierten Zonen für Meetings, Rückzug und informellen Austausch kombiniert.
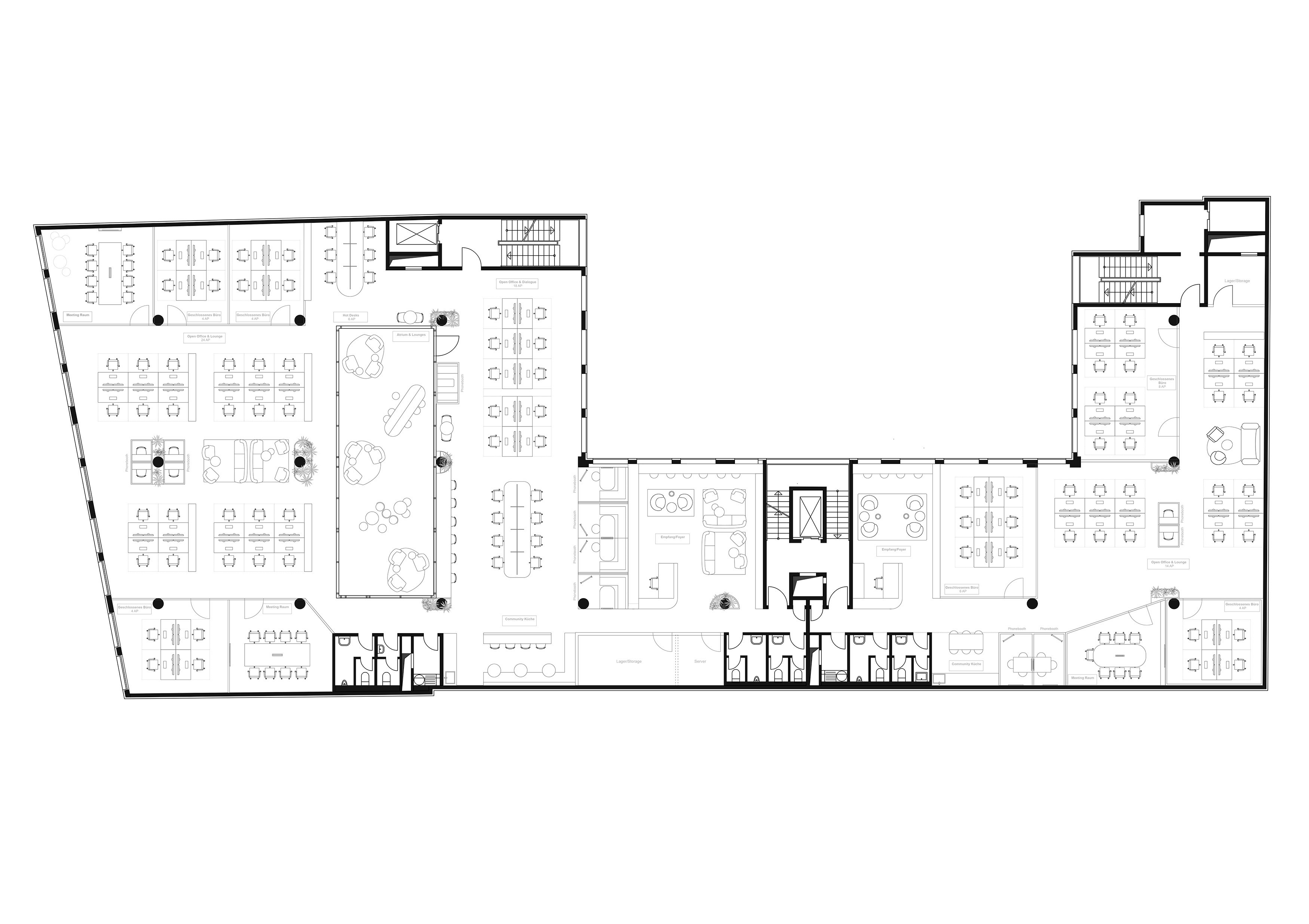
Der Grundriss organisiert sich entlang einer zentralen Erschließungsachse, die die verschiedenen Funktionsbereiche miteinander verbindet. Großzügige Open-Workspace-Flächen bilden den Kern der Bürostruktur und werden durch Besprechungsräume, Fokusbereiche und Lounges ergänzt. Eine gemeinschaftlich genutzte Küchen- und Aufenthaltszone fungiert als sozialer Treffpunkt innerhalb der Arbeitslandschaft.
Transparente Raumstrukturen und flexible Möblierungen unterstützen eine offene Arbeitsatmosphäre, während akustisch abgeschirmte Räume Rückzugsmöglichkeiten für konzentriertes Arbeiten bieten. Das Interior-Konzept setzt auf eine helle Materialität, klare Strukturen und punktuelle Begrünung. Großzügige Verglasungen sorgen für viel Tageslicht und stärken die visuelle Verbindung zwischen den einzelnen Arbeitsbereichen.
Für ein Büroprojekt der Ritterholding als Projektentwickler entwickelte KAMI BLUSCH das innenarchitektonische Konzept für eine offene Arbeitsumgebung. Ziel war es, eine flexible Bürostruktur zu schaffen, die kommunikative Arbeitsformen ebenso ermöglicht wie konzentriertes Arbeiten.
KAMI BLUSCH übernahm die Planung der Leistungsphasen 1–5 sowie die Erstellung der Renderings. Aufbauend auf der bestehenden Gebäudestruktur wurde ein räumliches Konzept entwickelt, das offene Arbeitsbereiche mit klar definierten Zonen für Meetings, Rückzug und informellen Austausch kombiniert.
Der Grundriss organisiert sich entlang einer zentralen Erschließungsachse, die die verschiedenen Funktionsbereiche miteinander verbindet. Großzügige Open-Workspace-Flächen bilden den Kern der Bürostruktur und werden durch Besprechungsräume, Fokusbereiche und Lounges ergänzt. Eine gemeinschaftlich genutzte Küchen- und Aufenthaltszone fungiert als sozialer Treffpunkt innerhalb der Arbeitslandschaft.
Transparente Raumstrukturen und flexible Möblierungen unterstützen eine offene Arbeitsatmosphäre, während akustisch abgeschirmte Räume Rückzugsmöglichkeiten für konzentriertes Arbeiten bieten. Das Interior-Konzept setzt auf eine helle Materialität, klare Strukturen und punktuelle Begrünung. Großzügige Verglasungen sorgen für viel Tageslicht und stärken die visuelle Verbindung zwischen den einzelnen Arbeitsbereichen.
Team:
Michal Blutrich, Karl Frederik Scholz
Kollaborationen:
Kollaborationen
Andreas Woyke
Leistungsphasen:
LPH 01 – 08
(Other works)
Wir freuen uns von Dir zu hören
Wir freuen uns von Dir zu hören



